
こんにちは。淀屋橋と肥後橋のちょうど間くらいにある不動産屋、最大仲介手数料無料のバッカス不動産です。
弊社内覧ブログをご覧いただき有難うございます。

さて、今回はクレストコート靭公園ザ・クラス Atype 1DK+シューズインクローク 28.48㎡の内見日記です。
玄関からバルコニーまで内覧形式でブログをアップさせていただきました。
※このブログはバッカス不動産スタッフが過去撮影した写真を基に作成しております。。
現在の募集についてのブログではありません。
悪しからずご了承下さいませ。
クレストコート靭公園ザ・クラスの基本情報
クレストコート靭公園ザ・クラスの所在地
大阪市西区西本町2丁目1-30
クレストコート靭公園ザ・クラスのアクセス
大阪メトロ千日前線「阿波座」駅徒歩5分
大阪メトロ中央線「阿波座」駅徒歩5分
大阪メトロ四つ橋線「本町」駅徒歩7分
大阪メトロ中央線「本町」駅徒歩7分
大阪メトロ御堂筋線「本町」駅徒歩11分
クレストコート靭公園ザ・クラスの建物情報及び賃貸募集について
クレストコート靭公園ザ・クラスの外観、共用部、賃貸状況等詳しい情報はこちらでご覧くださいませ。
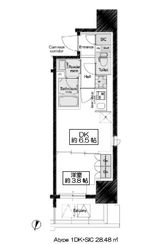
クレストコート靭公園ザ・クラス Atype 1DK+シューズインクローク 28.48㎡の間取図、室内内覧ブログ
クレストコート靭公園ザ・クラス Atype 1DK+シューズインクローク 28.48㎡の間取図

こちらが間取りです。
人気のホワイト系でまとめられた室内は、オシャレで洗練された雰囲気。
洋室とDKを開放すると、1Kとしても使える、フレキシブルな1DKです。
浴室乾燥機、シューズインクロークなど設備も充実しています。
では早速、お部屋を見てみましょう。
クレストコート靭公園ザ・クラス Atype 1DK+シューズインクローク 28.48㎡の室内内覧ブログ

まずは玄関です。
玄関ドアは、上下2ロックシステムで、防犯性が高いディンプルキーを採用しています。

センサーライト設置で自動でスイッチがオンオフ。
いつでも明るい玄関が出迎えてくれます。
荷物で手がふさがっていても、パッと点灯してくれるのも便利。
姿見が設置されているので、お出かけ前の身だしなみチェックはこちらでどうぞ。

こちらはシューズインクロークです。
サイズは幅約65センチ×奥行き約85センチ。

収納部分は天井まで高さがあり、たっぷりの収納力。
傘やちょっとした荷物なども収納できます。

室内は明るめのフローリング仕上げとなっています。
木目のデザインもオシャレ。

次はトイレです。
快適なウォシュレットタイプ。
上部の棚には、トイレットペーパーなどのストック用品を収納できます。

続いて、扉で仕切られたパウダールーム。
洗面台は、シャンプーだけしたいときにも便利な、シャンプードレッサーを採用。
バスルームドアにマット掛けが付いており、濡れたバスマットもすぐに干せます。

三面鏡の後ろは収納スペース。
毎日使うスキンケアグッズなどを収納すれば、洗面台の見た目もスッキリしますね。

ストック用品などは、下部の収納スペースに。

そしてバスルームです。
鏡の横には棚があるので、バスグッズなどを置いておけます。

雨の日のお洗濯にも活躍する、浴室乾燥機を完備。
浴室乾燥機は浴室の換気はもちろん、暑い季節は涼風、寒い季節は暖房、洗濯物の乾燥など、一年中活躍してくれますよ。

洗濯パンは廊下にあり、サイズは64センチ×64センチ。
上部に棚があるので、ランドリー用品などを置いておけます。

明かり取りの窓を設けた扉を開き、DKエリアへ入りましょう。

ガスコンロを縦に配置することで、調理スペース広く取った、1200mm幅のキッチン。
コンパクトながら使い勝手の良いキッチンで、お料理も存分に楽しんでいただけます。

上部には吊戸棚タイプの収納スペース。

下部にもたっぷりの収納スペース。
包丁差しも付いていますよ。

西側に窓を設けた、6.5帖のDK。
午後の日差しを取り込める、明るいお部屋です。

西側の窓。
スライド式の網戸付きで虫の侵入も防ぎます。

現地12階 DKの窓からの眺望です。(西側 2024年2月撮影)

別アングルからです。
食卓テーブル、もしくはソファとローテーブルなどを置くことができます。

DKの天井には、洋服を掛けることができるハンギングバーを設置。
黒で見た目もかっこいい。
グリーンなどを掛ければ、オシャレなディスプレイスペースとしても活用できそう。

大型のTVモニター付きインターホンで、お部屋の中から来訪者をチェックできるので、セキュリティも万全です。
留守録機能も付いており、不在時でもいつだれが訪問したかを確認でき、防犯効果も高まります。
女性の一人暮らしも安心。

そして洋室です。
北側に窓を設けた、広さ3.8帖の洋室。
くすみカラーのアクセントクロスもオシャレ。
人気のカフェインテリアなども映えそうですね。

DKとの仕切りは、デッドスペースの発生しないスライドタイプで空間を有効利用できる設計。
そしてこちらのマンションは、Wi-Fi対応インターネット無料となっています。
毎月のネット代の負担なしで使い放題はうれしい。

洋室内のクローゼット。
中のものが見やすい両開きタイプ。
サイズは幅約63センチ×奥行き約54センチが2つ。
上下に棚があるので、効率の良い収納ができます。

DKと洋室の仕切りを開放すると、このような広い1Kとしても利用することができます。
「ゆったりと快適なリビングで過ごしたい」という方にも満足していただける、フレキシブルな間取りですね。

バルコニーに出てみましょう。
出幅約1.5mもある大きなバルコニー。
まるでアウトドアリビングのようにくつろげ、開放的な空間でリフレッシュできるかも。
物干し掛け付きで、洗濯物干しもゆったりできます。

現地12階バルコニーからの眺望です。(北側 2024年2月撮影)

14階には、入居者専用のお洒落なコミュニティスペースが設けられています。

こちらは個室のテレワークブース。
コンセントが付いており、Wi-Fiも利用できます。

とても開放的なスカイテラス。
太陽の光を浴びながら、読書なども楽しめそうです。
お家に居ながらにして、リゾート気分を味わうのはいかがでしょうか。
最後までご覧頂きありがとうございました。
クレストコート靭公園ザ・クラスの賃貸をお探しなら
物件に詳しいバッカス不動産がオススメ

大阪市中央区、ビジネス街である淀屋橋、肥後橋駅からともに歩いて約3分。
つまりお部屋を借りるときに家賃の1月分かかる仲介手数料が最大無料。大きいですよね。
SUUMO、HOMESなどの掲載物件ももちろん全て取扱可能。お気軽にお問い合わせ下さい。
※最大仲介手数料無料は個人の方のみのサービスです。法人様の場合は、成約時に賃料の1ヶ月分と消費税を申し受けます。
※貸主側から正規の手数料が頂けない物件は、差額分を仲介手数料として申し受けます。
※営業エリアは北区/中央区/福島区/西区/浪速区/天王寺区限定とさせていただきます。
※完全予約制の不動産会社です。
※水商売、無職の方は審査通過のノウハウがないためバッカス不動産をオススメしません。
バッカス不動産の口コミ評判
バッカス不動産ならお部屋だけでなくカフェやスーパー、公園など地域情報もまとめてご紹介。


